Book a Property Valuation

Call us today on 0161 682 5300
Email: sales@clarkeand.co.uk

Abenberg Way, Hutton, Brentwood

Guide Price £219,995

1 Bedroom Maisonette For Sale in Abenberg Way, Hutton, Brentwood

1 1 1

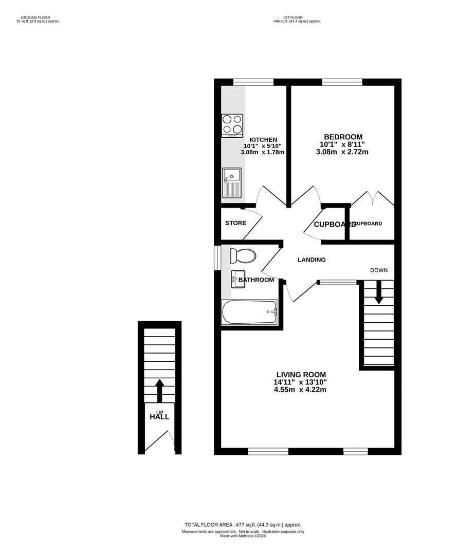
Situated on the ever-popular Thriftwood Development, conveniently positioned for excellent transport links via both Shenfield and Brentwood mainline railway stations, is this one-bedroom first-floor maisonette.

The property benefits from its own private entrance, leading to a hallway with stairs rising to the first-floor accommodation. A central landing provides access to a spacious living room with front-facing views. The bright kitchen is fitted with a range of eye and base level units, while the bathroom features a modern white suite with a shower fitted over the bath. The double bedroom is well proportioned and benefits from built-in wardrobes.

Further advantages include a quiet cul-de-sac position, one allocated parking space, AND A VERY LONG LEASE WITH NO SERVICE CHARGE OR GROUND RENT, making this an ideal purchase for first-time buyers, commuters, or investors alike.

Entrance Door To Hall -

Landing -

Living Room - 4.55m x 4.22m (14'11 x 13'10) -

Kitchen - 3.07m x 1.78m (10'1 x 5'10) -

Bedroom - 3.07m x 2.72m (10'1 x 8'11) -

Bathroom -

Agents Note - As part of the service we offer we may recommend ancillary services to you which we believe may help you with your property transaction. We wish to make you aware, that should you decide to use these services we will receive a referral fee. For full and detailed information please visit 'terms and conditions' on our website www.keithashton.co.uk

floorplan

epc

Whittington Road, Hutton, Bren...

£215,000

1 Bedroom Apartment

More details...

Uplands Road, Warley, Brentwoo...

£215,000

2 Bedroom Retirement Property

More details...

Uplands Road, Warley, Brentwoo...

£215,000

2 Bedroom Retirement Property

More details...

Gresham Close, Brentwood

£220,000

1 Bedroom Apartment

More details...

Gresham Close, Brentwood

£220,000

1 Bedroom Apartment

More details...

Mayfield Gardens, Brentwood

£225,000

2 Bedroom Apartment

More details...

Ref: 34393839

Brought to you by

Contact us

About us

Clarke & Co operate from offices in Chadderton and Lees, serving potential house buyers and sellers throughout the North Manchester and Oldham area.


Update Cookies Preferences