Book a Property Valuation

Call us today on 0161 682 5300
Email: sales@clarkeand.co.uk

Saffron Close, West Horndon, Brentwood

Guide Price £550,000

3 Bedroom Semi-Detached Bungalow For Sale in Saffron Close, West Horndon, Brentwood

1 3 1

**Guide Price £550,000 - £575,000** We are delighted to bring to market this beautifully presented semi-detached bungalow, ideally situated in a pleasant cul-de-sac within the charming village of West Horndon. Offering well-proportioned accommodation throughout, the property features three bedrooms and a spacious purpose-built outbuilding, ideal for use as a home office, gym, or additional living space.

Conveniently located within easy reach of local amenities, a well-regarded primary school, and just half a mile from West Horndon station, which provides direct C2C services into London, this home is perfectly suited for both families and commuters alike.

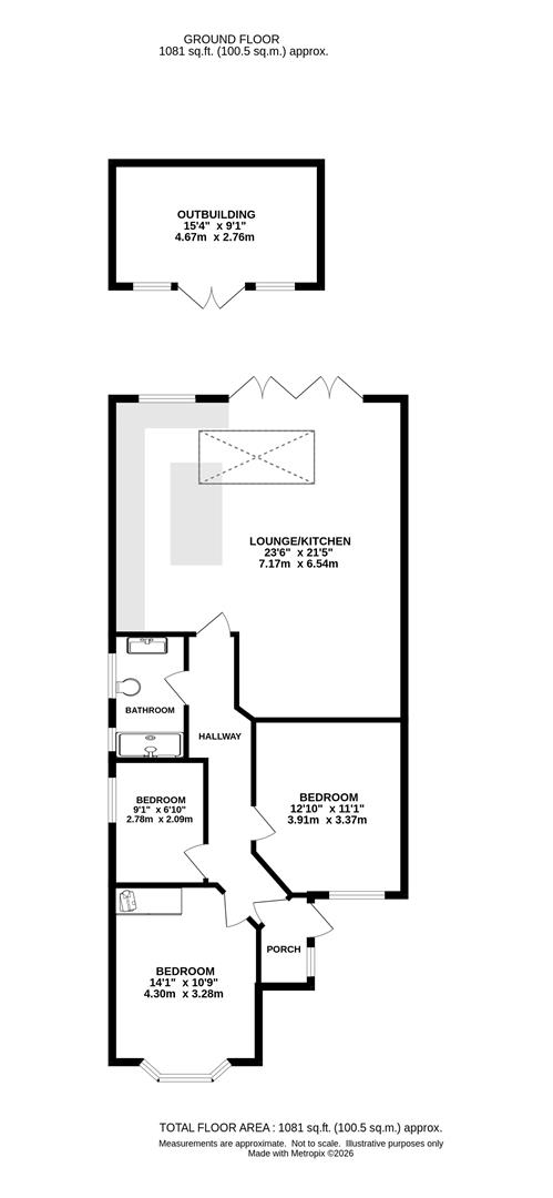
The internal accommodation begins with a useful entrance porch leading into a welcoming hallway, which provides access to all rooms. The property benefits from underfloor heating throughout, adding a touch of comfort and efficiency. To the rear, an impressive open-plan kitchen and lounge create an ideal space for both everyday living and entertaining, enhanced by a large skylight and bi-fold doors that open seamlessly onto the garden. The stylish kitchen is fitted with sleek cabinetry, granite work surfaces, a range of integrated appliances, and a convenient boiling water tap.

To the front of the property are two well-proportioned double bedrooms, complemented by a third single bedroom. A beautifully finished shower room completes the accommodation.

Externally, the rear garden features an attractive decked seating area, leading onto a neatly maintained lawn. A spacious, purpose-built outbuilding with French doors offers a versatile space, perfect for use as a home office, gym, or studio. To the front, a block-paved driveway provides off-street parking.

Porch -

Entrance Hall -

Lounge/Kitchen - 7.17 x 6.54 (23'6" x 21'5") -

Bedroom One - 4.30 x 3.28 (14'1" x 10'9") -

Bedroom Two - 3.91 x 3.37 (12'9" x 11'0") -

Bedroom Three - 2.78 x 2.09 (9'1" x 6'10") -

Bathroom -

Outbuilding - 4.67 x 2.76 (15'3" x 9'0") -

Agents Note - As part of the service we offer we may recommend ancillary services to you which we believe may help you with your property transaction. We wish to make you aware, that should you decide to use these services we will receive a referral fee. For full and detailed information please visit 'terms and conditions' on our website www.keithashton.co.uk

Property Features

  • SEMI-DETACHED BUNGALOW
  • BEAUTIFULLY PRESENTED THROUGHOUT
  • THREE BEDROOMS
  • INTEGRATED APPLIANCES
  • NO ONWARD CHAIN
  • 0.5 MILES TO C2C STATION
  • OUTHOUSE WITH POWER & LIGHT
  • WEST HORNDON VILLAGE

floorplan

epc

Spalt Close, Hutton, Brentwood

£550,000

3 Bedroom House

More details...

Woodman Road, Warley, Brentwoo...

£550,000

3 Bedroom Terraced House

More details...

Ongar Road, Brentwood

£550,000

3 Bedroom Terraced House

More details...

Hanging Hill Lane, Hutton, Bre...

£575,000

4 Bedroom Semi-Detached House

More details...

Burntwood Way, Brentwood

£575,000

3 Bedroom Semi-Detached House

More details...

Bardeswell Close, Brentwood

£575,000

3 Bedroom Semi-Detached House

More details...

Ref: 34573037

Brought to you by

Contact us

About us

Clarke & Co operate from offices in Chadderton and Lees, serving potential house buyers and sellers throughout the North Manchester and Oldham area.


Update Cookies Preferences