Book a Property Valuation

Call us today on 0161 682 5300
Email: sales@clarkeand.co.uk

Thorndon Park, Ingrave, Brentwood

Guide Price £500,000

3 Bedroom Apartment For Sale in Thorndon Park, Ingrave, Brentwood

1 3 2

**Guide Price £500,000 - £525,000** We are delighted to offer this charming three-bedroom duplex apartment, set within the magnificent Thorndon Hall. This elegant Grade I Listed, Palladian-style mansion is surrounded by beautifully landscaped communal gardens, while still being conveniently located within easy reach of Brentwood and Shenfield High Streets. Both areas provide a wide selection of shops, bars, and restaurants, along with mainline stations offering excellent transport links into London and beyond. The property also falls within the catchment area for the highly regarded Ingrave Johnstone Primary School and St Martins Secondary School.

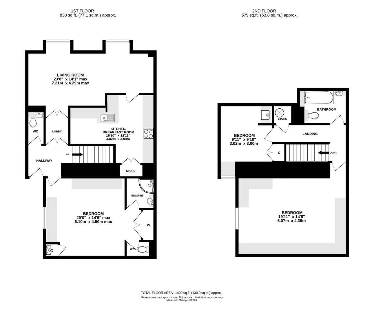
Set on the first floor, this apartment features a bright and generously proportioned living/dining room with an impressive 15ft ceiling height. Two large windows allow natural light to pour in, while also offering attractive views across the surrounding grounds.

The modern kitchen is well-appointed, providing ample storage and extensive worktop space, perfectly suited to day-to-day living.

On this level, there is a spacious double bedroom complete with fitted office furniture, display units, and a built-in wardrobe. It also benefits from a stylish en-suite shower room and a separate WC. A further guest WC serves the main living area.

Upstairs, the property offers an additional large double bedroom with extensive fitted wardrobes, along with a further well-proportioned double bedroom and a contemporary family bathroom featuring a jacuzzi bath.

Outside, the property benefits from ample parking and a private garage. There is also level access to a superb balcony, enjoying views over the grounds, landscaped gardens, and Thorndon Golf Course. Residents also have the advantage of beautifully maintained communal gardens.

Entrance Hall -

Lobby -

Living Room - 7.21 x 4.29 (23'7" x 14'0") -

Kitchen/Breakfast Room - 4.82 x 3.94 (15'9" x 12'11") -

Wc -

Bedroom One - 6.10 x 4.50 (20'0" x 14'9") -

Ensuite -

Wc -

Landing -

Bedroom Two - 6.07 x 4.39 (19'10" x 14'4") -

Bedroom Three - 3.02 x 3.00 (9'10" x 9'10") -

Bathroom -

Agents Note - As part of the service we offer we may recommend ancillary services to you which we believe may help you with your property transaction. We wish to make you aware, that should you decide to use these services we will receive a referral fee. For full and detailed information please visit 'terms and conditions' on our website www.keithashton.co.uk

Property Features

  • THREE BEDROOM DUPLEX APARTMENT
  • STUNNING PALLADIAN MANSION
  • PANORAMIC VIEWS
  • BEAUTIFUL LANDSCAPED GARDENS
  • NO ONWARD CHAIN
  • GARAGE
  • HIGHLY REGARDED SCHOOLS NEARBY
  • RESIDENTS PARKING

floorplan

epc

Hogarth Avenue, Brentwood

£500,000

3 Bedroom Detached Bungalow

More details...

Mascalls Lane, Brentwood

£500,000

3 Bedroom Detached House

More details...

Mayfield Gardens, Brentwood

£500,000

3 Bedroom End of Terrace House

More details...

Rushdene Road, Brentwood

£510,000

2 Bedroom Detached Bungalow

More details...

Myrtle Road, Warley, Brentwood

£515,000

3 Bedroom Terraced House

More details...

Linden Rise, Warley, Brentwood

£525,000

3 Bedroom Semi-Detached House

More details...

Ref: 34575438

Brought to you by

Contact us

About us

Clarke & Co operate from offices in Chadderton and Lees, serving potential house buyers and sellers throughout the North Manchester and Oldham area.


Update Cookies Preferences