Book a Property Valuation

Call us today on 0161 682 5300
Email: sales@clarkeand.co.uk

Knight Court, Crown Street, Brentwood

Price £280,000

1 Bedroom Apartment For Sale in Knight Court, Crown Street, Brentwood

1 1 1

We are delighted to present this well-appointed one-bedroom ground floor apartment, ideally situated just a stone's throw from Brentwood High Street and only 0.3 miles from Brentwood railway station, offering excellent transport links into London and beyond.

Offered with no onward chain, the property benefits from its own private entrance leading into a spacious living room. The well-designed kitchen is fitted with a range of eye and base level units, complemented by integrated appliances. An inner lobby provides access to a comfortable double bedroom and a modern bathroom, whilst externally, the apartment further benefits from an allocated parking space.

This property would make an ideal purchase for first-time buyers, commuters seeking convenience, or investors looking for a well-located addition to their portfolio.

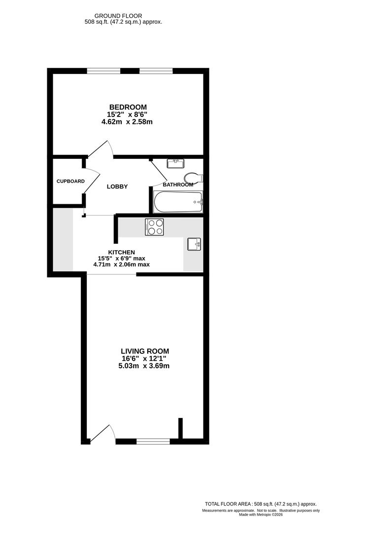
Living Room - 5.03 x 3.69 (16'6" x 12'1") -

Kitchen - 4.71 x 2.06 (15'5" x 6'9") -

Lobby -

Bedroom - 4.62 x 2.58 (15'1" x 8'5") -

Bathroom -

Agents Note - As part of the service we offer we may recommend ancillary services to you which we believe may help you with your property transaction. We wish to make you aware, that should you decide to use these services we will receive a referral fee. For full and detailed information please visit 'terms and conditions' on our website www.keithashton.co.uk

floorplan

epc

Doddinghurst Road, Brentwood

£280,000

2 Bedroom Apartment

More details...

St. James Road, Brentwood

£280,000

2 Bedroom Apartment

More details...

Rollason Way, Brentwood

£280,000

2 Bedroom Apartment

More details...

Rollason Way, Brentwood

£290,000

2 Bedroom Apartment

More details...

Hart Street, Brentwood

£290,000

2 Bedroom Apartment

More details...

Rollason Way, Brentwood

£290,000

2 Bedroom Apartment

More details...

Ref: 34505436

Brought to you by

Contact us

About us

Clarke & Co operate from offices in Chadderton and Lees, serving potential house buyers and sellers throughout the North Manchester and Oldham area.


Update Cookies Preferences