Book a Property Valuation

Call us today on 0161 682 5300
Email: sales@clarkeand.co.uk

SSTC
Crown Street, Brentwood

Price £210,000

2 Bedroom Apartment For Sale in Crown Street, Brentwood

1 2 1

Investment opportunity currently let out at £1400 per calendar month offering an incredible 7% plus yield! Keith Ashton Estates are delighted to offer for sale this spacious two bedroom apartment located in the heart of Brentwood's town centre and is therefore perfectly positioned also for Brentwood's Mainline Station with the new Elizabeth line. Simply step from the communal entrance door and within just a few yards you are right in the centre of town.

Situated on an upper level, there is a view across town centre rooftops, from a very impressive sitting room, with paned full-width windows to two aspects. The remainder of the accommodation comprises of two double bedrooms served by a modern bathroom, in addition to a modern Beech-style kitchen, with enough space for a small table and chairs.

Given the location, we feel this makes an ideal purchase for any commuter, or perhaps an investor on a buy-to let basis. NO ONWARD CHAIN

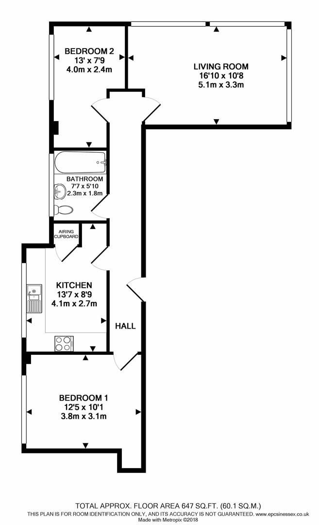
Hall -

Living Room - 5.13m x 3.25m (16'10 x 10'8) -

Kitchen - 4.14m x 2.67m (13'7 x 8'9) -

Bedroom 1 - 3.78m x 3.07m (12'5 x 10'1) -

Bedroom 2 - 3.96m x 2.36m (13' x 7'9) -

Bathroom - 2.31m x 1.78m (7'7 x 5'10) -

floorplan

epc

epc

Rosewood House, Rose Valley, B...

£210,000

1 Bedroom Apartment

More details...

Eastfield Road, Brentwood

£210,000

2 Bedroom Retirement Property

More details...

81 Warley Hill, Warley, Brentw...

£200,000

1 Bedroom Apartment

More details...

Elm Gardens, Mountnessing, Bre...

£214,000

3 Bedroom Semi-Detached House

More details...

Uplands Road, Warley, Brentwoo...

£215,000

2 Bedroom Retirement Property

More details...

120 William Hunter Way, Brentw...

£215,000

1 Bedroom Apartment

More details...

Ref: 33436508

Brought to you by

Contact us

About us

Clarke & Co operate from offices in Chadderton and Lees, serving potential house buyers and sellers throughout the North Manchester and Oldham area.


Update Cookies Preferences