Book a Property Valuation

Call us today on 0161 682 5300
Email: sales@clarkeand.co.uk

SSTC
Rosewood House, Rose Valley, Brentwood

Guide Price £210,000

1 Bedroom Apartment For Sale in Rosewood House, Rose Valley, Brentwood

1 1 1

** GUIDE RANGE £210,000 - £220,000 ** Located in a prime central position, within close proximity of Brentwood High Street and railway station, is this attractive one bedroom character apartment. Offered for sale with no onward chain, this property is ideal for first time buyer and investors alike.

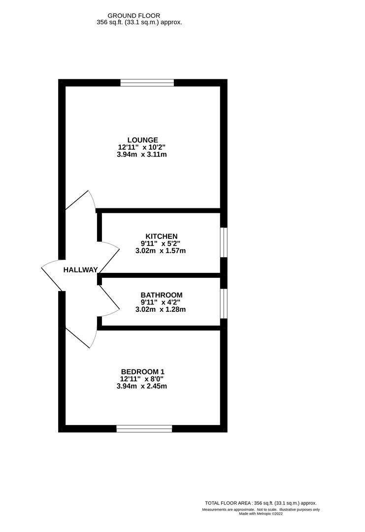
The property is positioned on the upper ground floor and is accessed via a large communal hallway. There is an internal hallway, off which is the reception room located towards the front of the property. There is a separate fitted kitchen, comprising a range of above and below counter storage units, ample worktop space and various integrated appliances.

To the rear of the property is a well proportioned double bedroom with the bathroom completing the internal layout. Externally the property benefits from allocated parking.

Lease information and charges are to follow.

Hallway -

Lounge - 3.66m.3.35m x 3.05m.0.61m (12.11 x 10.2) -

Kitchen - 2.74m.3.35m x 1.52m.0.61m (9.11 x 5.2) -

Bathroom - 2.74m.3.35m x 1.22m.0.61m (9.11 x 4.2) -

Bedroom One - 3.66m.3.35m x 2.44m.0.00m (12.11 x 8.0) -

Agents Note - As part of the service we offer we may recommend ancillary services to you which we believe may help you with your property transaction. We wish to make you aware, that should you decide to use these services we will receive a referral fee. For full and detailed information please visit 'terms and conditions' on our website www.keithashton.co.uk

floorplan

epc

Crown Street, Brentwood

£210,000

2 Bedroom Apartment

More details...

Eastfield Road, Brentwood

£210,000

2 Bedroom Retirement Property

More details...

81 Warley Hill, Warley, Brentw...

£200,000

1 Bedroom Apartment

More details...

Elm Gardens, Mountnessing, Bre...

£214,000

3 Bedroom Semi-Detached House

More details...

Uplands Road, Warley, Brentwoo...

£215,000

2 Bedroom Retirement Property

More details...

120 William Hunter Way, Brentw...

£215,000

1 Bedroom Apartment

More details...

Ref: 33616934

Brought to you by

Contact us

About us

Clarke & Co operate from offices in Chadderton and Lees, serving potential house buyers and sellers throughout the North Manchester and Oldham area.


Update Cookies Preferences